TPP

نظرة عامة

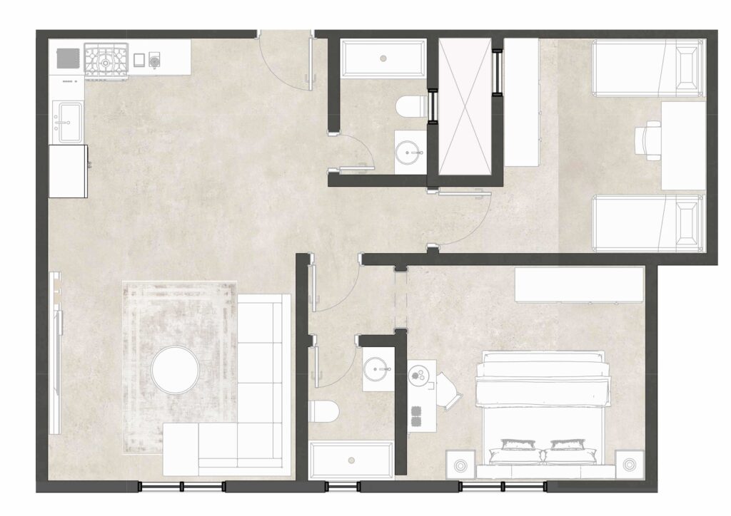
مشروع كويا هو مجمع سكني فاخر مغلق يقع في أحد أحدث أحياء مدينة الخبر، ويضم 100 وحدة سكنية بتصاميم أنيقة تجمع بين الحداثة والراحة، مما يمنح السكان أسلوب حياة متكامل يراعي أعلى معايير الجودة والرفاهية. يتميز المشروع بكونه مجتمعًا متكامل الخدمات، حيث يتوفر مسبح، نادٍ صحي مجهز بالكامل، ومساحات خضراء تضفي على المكان طابعًا هادئًا ومريحًا. تم تطوير كويا بأسلوب معماري يجمع بين الجمالية والوظيفية، ليقدم بيئة مثالية للعائلات تبحث عن الخصوصية، الأمان، والراحة في تفاصيل حياتهم اليومية، ضمن أجواء تنبض بالسكينة والانتماء.

تحت الإنشاء

حالة

70%

مبيعات

50%

معدل إنجاز المشروع

100+

عدد الوحدات

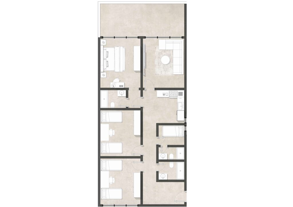
مشروع جاردينيا هو مجمع سكني فاخر مغلق يقع في أحد أحدث أحياء مدينة الخبر، ويضم 283 وحدة سكنية بتصاميم أنيقة تجمع بين الحداثة والراحة، مما يمنح السكان أسلوب حياة متكامل يراعي أعلى معايير الجودة والرفاهية. يتميز المشروع بكونه مجتمعًا متكامل الخدمات، حيث يوفر مسابح متنوعة، مقهى بإطلالات مميزة، نادٍ صحي مجهز بالكامل، ومساحات خضراء تضفي على المكان طابعًا هادئًا ومريحًا. تم تطوير جاردينيا بأسلوب معماري يجمع بين الجمالية والوظيفية، ليقدم بيئة مثالية للعائلات تبحث عن الخصوصية، الأمان، والراحة في تفاصيل حياتهم اليومية، ضمن أجواء تنبض بالسكينة والانتماء.​

تحت الإنشاء

حالة

80%

مبيعات

20%

معدل إنجاز المشروع

283+

عدد الوحدات

القيمة السوقية [مليون ريال]
0 +
عدد الوحدات
0 +
مساحة الأرض
+ 0

وسائل الراحة

مواقف خاصة للسيارات

التصميم الحديث

موقع فريد

حمام السباحة

المساحات المفتوحة

الضمانات

هيكل المبنى

تمديدات السباكة

تمديدات الكهرباء

العزل المائي والحراري

النماذج

الموقع

الاستفسارات والملاحظات

ولجميع الاستفسارات المتعلقة بمشروعات الشراكة عبر المحيط الهادئ برجاء الاتصال بنا على الرقم 0138345335.

بإرسال رسالتك، تكون قد قرأت سياسة الخصوصية والشروط والأحكام.

×

Hello!

Click one of our contacts below to chat on WhatsApp

×